Use the filters below to compare manufactured home floor plans by bedrooms, bathrooms, and square footage. If you already know where you plan to place the home — private land, a community, or a coastal property — we can help you narrow the right layout faster.
Tip: If you’re comparing modular construction, visit our Modular Homes in Florida page. This page focuses on manufactured home layouts.
SEARCH MANUFACTURED HOMES FLOOR PLANS
SEARCH FLOOR PLANS






Understanding Manufactured Home Floor Plans in Florida
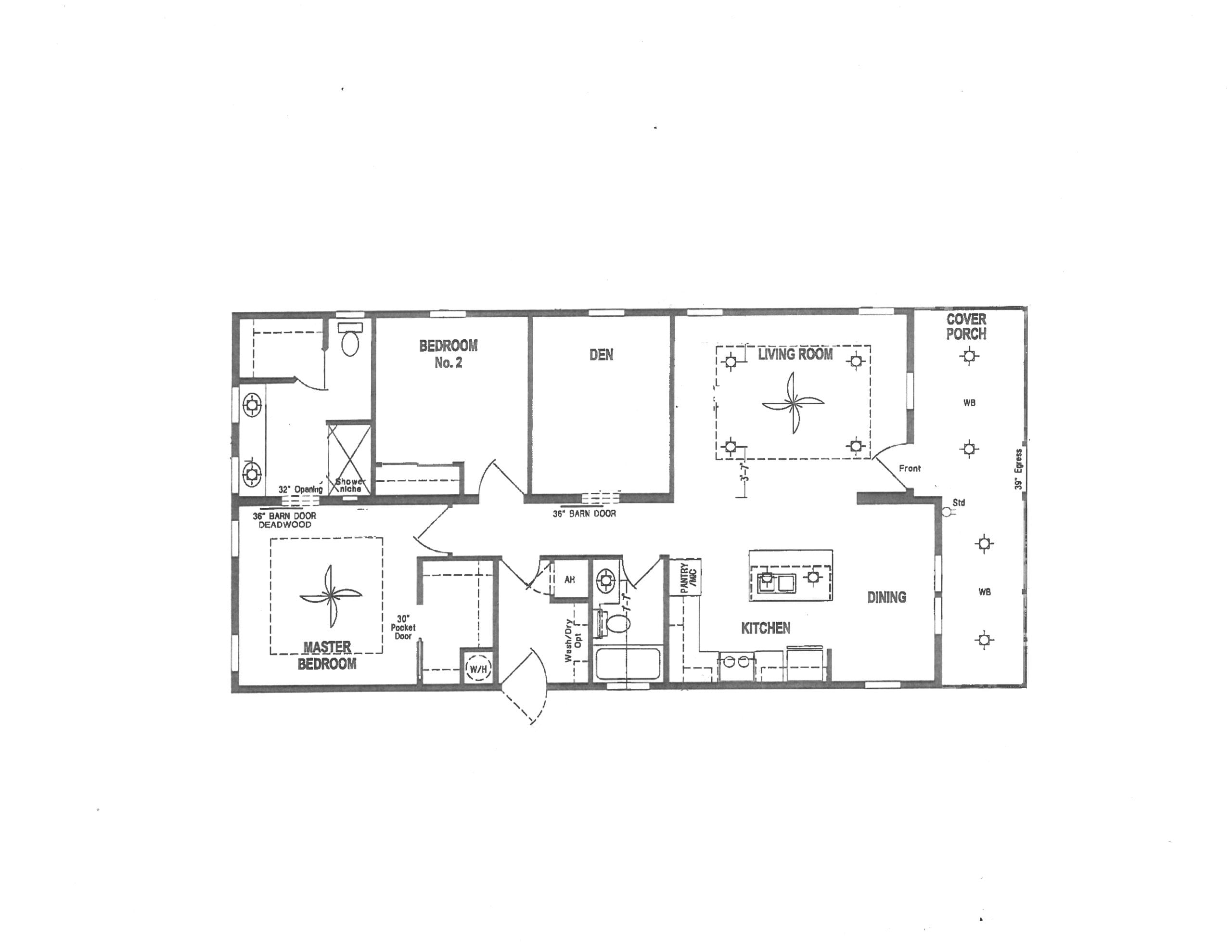
Manufactured home floor plans in Florida are designed to balance livability, placement requirements, and regional building standards. Unlike traditional site-built homes, manufactured homes follow HUD construction guidelines, which means layouts are engineered for efficiency, durability, and consistent quality across all models.

In Florida, floor plan selection goes beyond bedrooms and square footage. Coastal wind zones, flood elevations, and lot placement can influence layout decisions such as roof pitch, porch design, ceiling height, and structural reinforcement. Homes intended for private land often allow more customization, while community or park placement may require specific dimensions or orientation.
Single-section and multi-section manufactured homes offer different advantages depending on how the space will be used. Open-concept kitchens and living areas tend to maximize usability in smaller footprints, while split-bedroom layouts provide privacy for guests or multi-generational households. Florida buyers also frequently prioritize outdoor transitions, making covered porches, lanais, and elevation-ready designs an important consideration.
If you are comparing construction types, it is important to understand the difference between manufactured and modular homes. Manufactured layouts focus on efficient design within HUD standards, while modular homes follow local building codes. You can explore the differences on our modular homes in Florida page.
Choosing the right manufactured home floor plan starts with understanding how the home will be used and where it will be placed. Florida buyers should evaluate layouts not just by size, but by how well the design fits their lifestyle and location.
- Bedrooms and bathrooms: Consider daily routines, long-term needs, and whether guest space or a home office is required.
- Square footage: Efficient layouts often feel larger than oversized plans with unused rooms.
- Lot placement: Homes placed on private land may allow more flexibility than those installed in managed communities or parks.
- Coastal conditions: Waterfront or coastal properties may benefit from elevated or stilt-ready designs that account for flood zones and airflow.
- Construction standards: Layouts can vary based on wind rating, roof structure, and optional upgrades.
Our team helps buyers compare layouts based on placement, budget, and future plans. If you want guidance beyond filters, we can recommend options that align with your goals.
Floor Plans, Land Placement, and Elevation Options
Manufactured home floor plans are often selected alongside land and placement decisions. Homes placed on private property may prioritize wider layouts or additional outdoor features, while community placement may require specific dimensions.
For coastal and waterfront areas, elevated designs can be an important factor. Floor plans that accommodate raised foundations or stilt systems provide additional flexibility in flood-prone zones. Learn more about elevation-ready designs on our elevated living and stilt homes page.
Build quality also matters. Structural integrity, roof systems, and material standards influence how a floor plan performs over time. You can review our construction standards to understand what goes into every home.

Lot and Land Packages
Three Options
A. Located at 11300 Bougainvillea Ln. Ft. Myers Beach, FL
This Jacobsen Home features 2 bedrooms + Den, 2 baths with a 7.5′ x 26’8″ Porch.
B. Located at 11310 Bougainvillea Ln. Ft. Myers Beach, FL
This Jacobsen Home features 2 bedrooms + Den, 2 baths with a 7.5′ x 26’8” Porch.
Click here to see Virtual Tour
C. Located at 11300 Cypress Ln. Ft. Myers Beach, FL
This Jacobsen Home features 3 bedrooms, 2 baths with a 8′ x 26’8” Porch.
Located at 9824 Cattail Ct. Ft. Myers, FL
This Jacobsen Home features 2 bedrooms, 2 baths with a 8′ x 11′ Screen Room.
Two Options
A. Located at 529 Ideal Place North Port, FL
This Jacobsen Home features 2 bedrooms, 2 baths with a 8′ x 13′ Porch.
Click here to see Virtual Tour
B. Located at 330 Trailorama Dr. North Port, FL
This Jacobsen Home features 2 bedrooms, 2 baths with a 10′ x 24′ Porch.
Located at 210 Pier B, Naples, FL
This Jacobsen Home features 2 bedrooms, 2 baths and has a 13.5’ x 8’ Porch
Located at 19681 Summerlin Rd. #C353 Ft. Myers, FL
This Skyline home features 2 bedrooms, 2 baths with a 8′ x 11′ Site-Built Screen Room
Click here to see Virtual Tour


Additional Tours From Jacobsen Homes
Additional Jacobsen Floorplans Available
Jacobsen Standard Specs & Optional Features
Manufactured Home Floor Plans FAQ
What should I look for when comparing manufactured home floor plans?
Focus on layout flow, bedroom and bathroom placement, storage, and how the home fits your daily routines. Square footage matters, but smart layouts often feel larger than they are.
Can I place a manufactured home on my own land in Florida?
In many cases, yes. Zoning and local requirements vary, so it’s best to confirm placement early. We can help you evaluate land, placement considerations, and next steps.
Do you offer elevated or stilt manufactured home options for coastal areas?
Yes. If you’re considering coastal or waterfront placement, elevated living may be a better fit. Explore our stilt home options and ask our team which layouts work best for your location.
What’s the difference between manufactured and modular home floor plans?
Manufactured homes are built to HUD standards and delivered to the final site. Modular homes are built in sections to state and local building codes and assembled on-site. This page focuses on manufactured home layouts.
How do I get pricing or availability for a specific floor plan?
The fastest way is to request info on the model you like or contact our team. We’ll confirm availability and help you compare options based on your placement and goals.
